Apartament 76m2 z widokiem Podgórze Duchackie.

lokalizacja: Kraków, Adama Bochenka

952 341,00 PLN

12 530,80 PLN

Opis nieruchomości

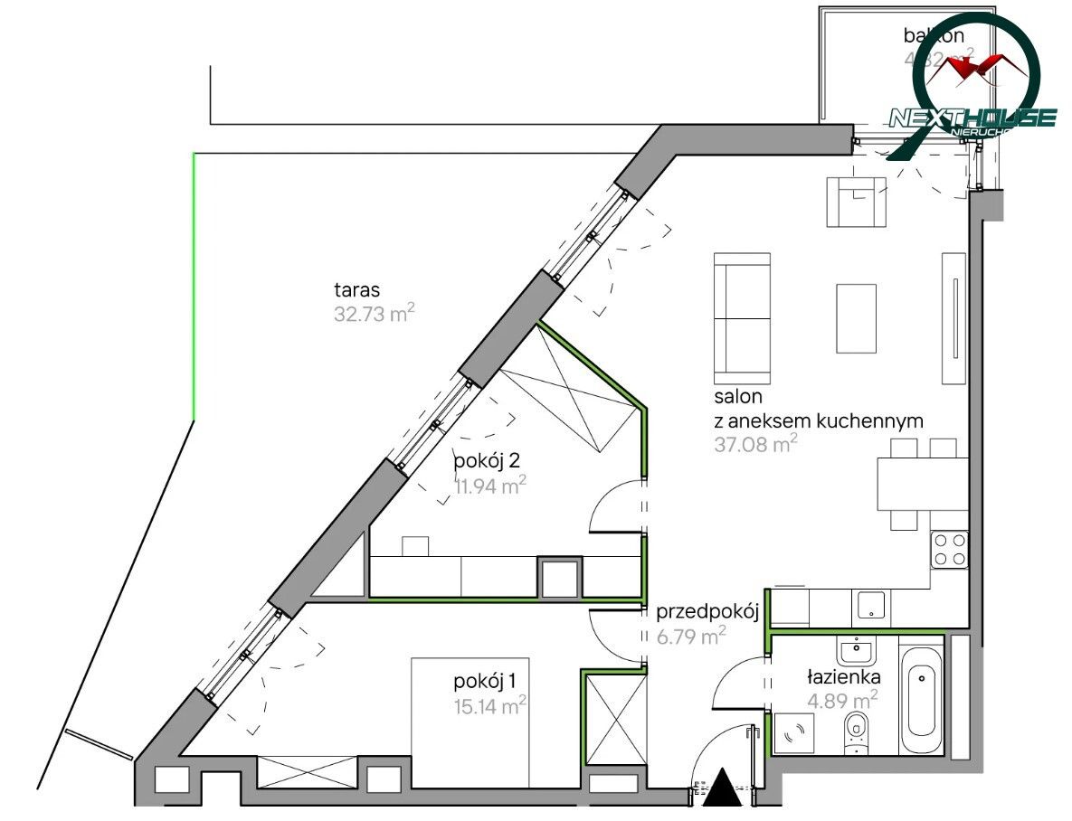
Mieszkanie 76m2 tarasem 32m2 i balkonem 4.3m2 Podgórze Duchackie/Kraków.

Bez podatku PCC, Bez prowizji!


Lokalizacja: W najbliższej okolicy liczne punkty handlowo-usługowe (Biedronka, Lidl, Carrefour, punkty gastronomiczne, szkoły, przedszkola, żłobki),szybka komunikacja we wszystkich kierunkach miasta (tramwaj, autobus), 4 minuty do przystanków, blisko wyjazd za obwodnicę A4, kilka parków, dużo zieleni i placów zabaw. Dojazd do centrum zajmuje średnio 25 minut (samochodem). Cicha i spokojna okolica, pośród zieleni. Przystanek autobusowy „Nowosądecka” (linie 155, 164, 169, 610, 204, 244), tramwaj (linie 11, 24, 50) .





Apartament: Budynek wybudowany w technologii (Konstrukcja - żelbetowa monolityczna i
murowana)
▪ Ściany zewnętrzne - wypełniające z
pustaków ceramicznych gr. 25 cm, ściany
konstrukcyjne gr 18 cm, 20 cm i 25cm; i
słupy żelbetowe
▪ Elewacja - tynk cienkowarstwowy na
izolacji termicznej;
▪ Dach - stropodach płaski kryty papą
termozgrzewalną, membraną lub folią,
izolowany termicznie, obróbki blacharskie
z blachy ocynkowanej powlekanej;
▪ Okna, drzwi, bramy: drzwi wejściowe do
budynku - ślusarka aluminiowa
przeszklona z samozamykaczem, drzwi
garażowe stalowe zgodne z wymaganiami
pożarowymi - do przedsionków
przeciwpożarowych;
▪ brama garażowa segmentowana lub
rolowana,
▪ windy osobowo-towarowe z poziomu
garażu podziemnego - po jednej w każdej
klatce schodowej.

Budynek wyposażony w cichobieżną windę.

Salon z aneksem kuchennym  37,08 m2
Pokój 1   15,14 m
Pokój 2   11,94 m2
Łazienka 4,89 m2
Przedpokój 6,79 m
+balkon 4,32 m2
+taras 32,73 m

Miejsca postojowego w hali garażowej w cenie 37 000 zł


Dodatkowo przy współpracy z naszym biurem jest możliwość wykończenia mieszkania pod klucz!



Doradztwo kredytowe na każdą nieruchomość niskie oprocentowanie!


Cena sprzedaży:

Cena 952 341 zł

76 m2, taras 32m2 , 4.3m2 balkon

Polisa OC PZU ( Nr. Polisy 00013835)

Kontakt do agenta:

508 002 065

kontakt.nexthouse@gmail.com

Kontakt do opiekuna:

next-house.pl

Sylwester Raś
Nieprawidłowy adres E-mail
Mapa

Strona korzysta z plików cookie w celu realizacji usług zgodnie z Polityką prywatności. Możesz określić warunki przechowywania lub dostępu do cookie w Twojej przeglądarce.